Aktuelle Projekte
Aktuelles Projekt
- Sanierung unter Berücksichtigung des historischen Bestands
- Umsetzung eines umfassenden Brandschutzkonzepts
- Erneuerung der Heizungsanlage inklusive moderner Wärmeverteilung
- Modernisierung der Elektro- und Beleuchtungstechnik in den Sport- und Nebenräumen
- Erneuerung der Sporthallenflächen: neuer Sportboden, frische Anstriche und neue Prallwände
- Anpassung der Raumstrukturen durch gezielte Durchbrüche und Schließung bestehender Öffnungen
- Funktionale und raumakustische Verbesserung für einen zeitgemäßen und sicheren Sportbetrieb
Bauherr:
- Stadtverwaltung Wilthen
- BGF: 887,00 m2
- NGF: 715,62 m2
- BRI: 5213,00 m2
Bausumme:
- 490.000 Euro/ brutto (KG 300-700), Kostenberechnung I/2025
Planung:
- 01/ 2025 – 03/ 2025
Bauzeit:
- 06/ 2025 – 09/ 2025
Leistungsumfang Generalplanung:
- Objektplanung Gebäude – LPH 2-8
- Planung Technische Ausrüstung ALG 1-3 – LPH 2-8
- Planung Technische Ausrüstung ALG 4+5 – LPH 2-8
- Fachplanung Brandschutz
- Fachplanung Raumakustik
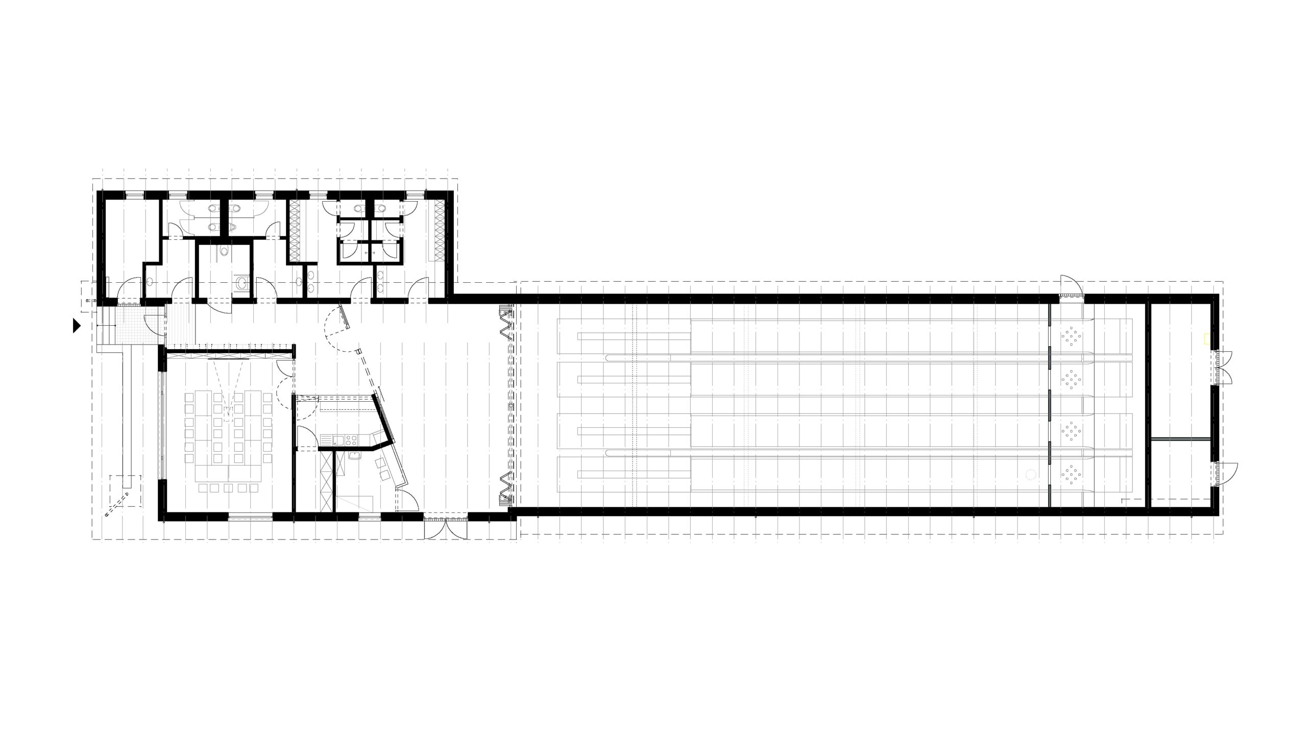
Aktuelles Projekt
- Abbruch des bestehenden Gebäudekomplexes
- Im Neubau des Bürgerzentrums entsteht neben dem Sporttrakt auch ein Versammlungsraum mit Teeküche, welcher für Veranstaltungen genutzt werden kann
- Der Sporttrakt beinhaltet die 4-Bahnen-Wettkampfanlage, den Zuschauerraum, das Wettkampfbüro und die für den Vereinssport erforderlichen Umkleiden und Sanitäranlagen.
- Die Kegelbahn kann durch eine Faltwand abgetrennt werden, dass der Vereinsraum durch die Nutzung des Zuschauerraums erweitert werden kann.
- Sanierung, Attraktivierung sämtlicher Freianlagen
Bauherr:
- Gemeindeverwaltung Hochkirch
- BGF: 645 m²
- NRF: 565 m²
- NUF: 498 m²
Bausumme:
- 2.754.451 Euro (brutto) (KG 200-700), Kostenberechnung I/2022
Planung:
- 03/ 2019 – 08/ 2023
Bauzeit:
- 02/ 2024 – 10/ 2025
Leistungsumfang Generalplanung:
- Objektplanung Gebäude, LPH 1-9
- Objektplanung Freianlagen, LPH 1-9
- Planung Technische Ausrüstung ALG 1-3, 4+5, LPH 1-9
- Tragwerksplanung LPH 1-6+8
- Thermische Bauphysik, GEG-Nachweis
- Brandschutzplanung
Aktuelles Projekt
- Qualifizierung, Modernisierung und Erweiterung des bestehenden Hallenbades sowie der Saunalandschaft
- Erweiterung der Schwimmhalle um einen Hallenanbau mit 25m-Sportbecken sowie Kinderplanschbecken
- Erweiterung der Saunalandschaft um einen Anbau für große Panoramasauna (60 Personen), Dampfsauna, Tapidarium und großer Kaltanwendungsbereich
- Umbau und Erweiterung der Funktionsbereiche für Schwimmhalle und Saunalandschaft
- Sanierung des bestehenden Schwimmhallenbereichs, Erlebnisbecken mit Ausschwimmkanal und Kinderbecken
- Komplette Sanierung sowie Teilerneuerung aller gebäudetechnischen Anlagen – Sanitär, Heizung, Lüftung, Küchentechnik, badewassertechnische Anlage
- Sanierung, Attraktivierung und Erweiterung sämtlicher Freianlagen
- Sanierung Solebecken im Saunagarten
Bauherr:
- Lausitzbad Hoyerswerda GmbH
- BGF: 9.084 m²
- NRF: 8.358 m²
- NUF: 4.648 m²
Bausumme:
- 28.983.000 Euro (brutto) (KG 200-700), Kostenberechnung IV/2022
Planung:
- 07/ 2019 – 10/ 2023
Bauzeit:
- 02/ 2023 – I. Quartal/ 2025
Leistungsumfang Generalplanung:
- Objektplanung Gebäude, LPH 1-9
- Objektplanung Freianlagen, LPH 1-9
- Planung Technische Ausrüstung ALG 1-3, LPH 1-9
- Planung Technische Ausrüstung ALG 7 – Badewassertechnik, LPH 1-9
- Planung Technische Ausrüstung ALG 7 – Küchentechnik, LPH 1-9
- Brandschutzplanung
Aktuelles Projekt
Abbruch alte Freibadanlage am historischen Standort Elberitzmühle in Delitzsch
Neuerrichtung Kombibad am Standort des ehemaligen Freibades „Elberitzstraße“ mit
folgendem LeistungsumfangHallenbad mit ca. 1.900 m2 Grundfläche (BGF), 25 m – Schwimmerbecken, 5 Bahnen mit einer Gesamtwasserfläche von ca. 320 m2 sowie angegliederte Funktions- und Technikbereiche über zwei Geschosse
Freibad
Funktionsgebäude mit Sanitär- und Umkleidebereich, Filterkeller und
MehrzweckbereicheZentrales Schwimmmeistergebäude mit 360° Rundumblick
50 m – Mehrzweckbecken, Wassertiefe 1,80 m bis 3,60 m, Wasserfläche ca. 860 m2, inkl. Sprungturmanlage
Erlebnisbecken, Wassertiefe 0,60 m bis 1,35 m, Wasserfläche ca. 510 m2, inkl. Breitrutsche und Insel mit Wasserfontänen
Kinderplanschbecken, Wassertiefe 0,15 m bis 0,35 m, Wasserfläche ca. 54 m2, inkl. Kleinkinderrutsche, Spritzattraktion und
SonnensegelanlageKinderspielplatz mit Sonnensegelanlage
Beachvolleyballplatz und Streetballanlage
Großzügig angelegte Liegewiese
Überdachter Freibereich für Catering und Veranstaltungen
Neuerrichtung sämtlicher gebäudetechnischen Anlagen – Sanitär, Heizung, Lüftung,
Elektro, Badewassertechnik und Leittechnik für Hallen- und FreibadErrichtung eines innovativen Energieversorgungskonzepts, bestehend aus PV-Anlage, BHKW und Brennwerttherme, Solarabsorberanlagen für die Beckenerwärmung im Freibad
Bauherr:
- Große Kreisstadt Delitzsch
- BGF: 3.242 m²
NGF: 2.775 m²
NF: 1.356 m²
Bausumme:
- Kostenberechnung ca. 23.250.000 € (brutto) erstellt 1. Quartal 2022
- Kostenstand Projektabschluss ca. 23.500.000 € (brutto)
Planung:
- 05 / 2021 – 06/ 2023
Bauzeit:
- 12 / 2022 – I. Quartal 2025
Leistungsumfang Generalplanung:
- Objektplanung Gebäude, LPH 1-9
- Objektplanung Freianlagen, LPH 1-9
- Technische Ausrüstung über alle Anlagengruppen, LPH 1-9
- Planung Brandschutz
- Planung Thermische Bauphysik
- Planung Schall- und Immissionsschutz
- Planung Bau- und Raumakustik
Aktuelles Projekt
Bauherr:
- Gunnebo Markersdorf GmbH
- BGF: 2.557 m²
- NRF: 2.455 m²
- NUF: 2.308 m²
Bausumme:
- ca. 8.522.000 Euro/ brutto (KG 100-700), Kostenberechnung III/2023
Planung:
- 09/ 2022 –
Bauzeit:
Leistungsumfang Generalplanung:
- Objektplanung Gebäude, LPH 1-9
- Objektplanung Freianlagen, LPH 1-9
- Tragwerksplanung, LPH 1-6+8, (Sub-Planung IB Wagner&Paul)
- Technische Ausrüstung ALG 1-3+7+8, LPH 1-9
- Technische Ausrüstung ALG 4+5, LPH 1-9 (Sub-Planung IB ILM GmbH)
- Brandschutzplanung
- Thermische Bauphysik
Aktuelles Projekt
Bauherr:
- CREATON Produktions GmbH, Standort Guttau
- BGF: 2.892 m²
- NRF: 2.673 m²
- NUF: 2.614 m²
Bausumme:
- 6.361.000 Euro/ brutto (KG 100-700), Kostenberechnung III/202
Planung:
- 09/ 2022 –
Bauzeit:
Leistungsumfang Generalplanung:
- Objektplanung Gebäude, LPH 1-9
- Objektplanung Freianlagen, LPH 1-9
- Tragwerksplanung, LPH 1-6+8, (Sub-Planung IB Wagner&Paul)
- Technische Ausrüstung ALG 1-3+7+8, LPH 1-9
- Technische Ausrüstung ALG 4+5, LPH 1-9 (Sub-Planung IB ILM GmbH)
- Brandschutzplanung
Aktuelles Projekt
- Sanierung/ Erweiterung der bestehenden Schwimmhalle Charlottenburg – Neue Halle, Teilsanierung des historischen Stadtbads
- 1.308 m² Gesamtwasserfläche
- 50m – Schwimmerbecken, 6 Bahnen
- Nichtschwimmerbecken, Springerbecken mit Sprunganlage (1m/3m)
- Planschbecken
- Neuerrichtung Saunaanlage, 100 Kapazitätspersonen
Bauherr:
- Berliner Bäder Betriebe AöR
- BGF: 8.550 m²
- NGF: 7.887 m²
- NF: 3.868 m²
Bausumme:
- 28.506.000 Euro/ brutto (KG 200-700) Kostenschätzung III/2020
Planung:
- 07/ 2020 –
Bauzeit:
Leistungsumfang:
- Objektplanung Gebäude, LPH 1-9
- Objektplanung Freianlagen, LPH 1-9
- Farb-, Materialkonzept
- Denkmalpflege
Aktuelles Projekt
- Ersatzneubau einer 2-zügigen Oberschule für 336 Schüler
- Gemäß Schulbauleitlinie Dresden 2016
Bauherr:
- Landratsamt Bautzen
- BGF: 5.246 m²
- NGF: 4.665 m²
- BRI: 3.405 m²
Bausumme:
- 20.093.000 Euro/ brutto (KG 100-700), Kostenberechnung IV/2022
Planung:
- 03/ 2022 –
Bauzeit:
Leistungsumfang:
- Objektplanung Gebäude, LPH 1-9
- Objektplanung Freianlagen, LPH 1-9
- Thermische Bauphysik
Schallschutzplanung; Bau- und Raumakustik
Aktuelles Projekt
- Sanierung/ Erweiterung der 2-zügigen Oberschule für 336 Schüler
- Gemäß Schulbauleitlinie Dresden 2016
Bauherr:
- Gemeinde Krauschwitz
- BGF: 5.337 m²
- NGF: 4.162 m²
- BRI: 2.911 m²
Bausumme:
- 12.303.000 Euro/ brutto (KG 100-700), Kostenberechnung II/2022
Planung:
- 01/ 2018 –
Bauzeit:
Leistungsumfang:
- Objektplanung Gebäude, LPH 1-9
- Objektplanung Freianlagen, LPH 1-9
- Tragwerksplanung, LPH 1-6+8, (Sub-Planung IB Wagner&Paul)
- Technische Ausrüstung ALG 1-3+7+8, LPH 1-9
- Technische Ausrüstung ALG 4+5, LPH 1-9 (Sub-Planung IB EPB GmbH)
- Brandschutzplanung
- Thermische Bauphysik
- Denkmalpflege
Aktuelles Projekt
Neubau einer Kindertageseinrichtung für 180 Kinder – Kinderkrippe, Kindergarten, Hort; Integrationskita
Bauherr:
- Verwaltungsgemeinschaft Neschwitz-Puschwitz
- BGF: 2.570 m²
- NGF: 2.075 m²
- BRI: 1.670 m²
Bausumme:
- ca. 10.300.000 Euro/ brutto (KG 100-700), Kostenberechnung I/2023
Planung:
- 04/ 2022 –
Bauzeit:
Leistungsumfang:
- Objektplanung Gebäude, LPH 1-9
- Objektplanung Freianlagen, LPH 1-9
- Tragwerksplanung, LPH 1-6+8, (Sub-Planung IB Wagner&Paul)
- Technische Ausrüstung ALG 1-3+7+8, LPH 1-9
- Technische Ausrüstung ALG 4+5, LPH 1-9 (Sub-Planung IB EPB GmbH)
- Brandschutzplanung
- Thermische Bauphysik
- Schallschutzplanung; Bau- und Raumakustik


























































